Site Loader
Back to NSC.CA

Design

  • Was a joint project between the City of Nepean and the Nepean Sailing Club
    • We each provided a portion of the funds to build it.
    • NSC paid for the architects’ drawings and was therefore fully involved in the design.
  • Designed by the same architecture firm (Griffiths Rankin Cook) which also designed among others:
    • the Embassy of the State of Kuwait,
    • Algonquin’s College School of Advanced Technology,
    • Canada and the World Pavilion,
    • and collaborated with another architect firm on the design of the Canadian War Museum.
  • The design of the building won 2 awards.
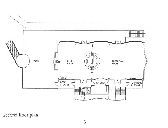
  • The ceiling of the second level is meant to remind of the inverted interior of a traditional wooden ship.
  • The wooden ceiling is made of pine.
  • The undulating shapes echo the wind, water and wave theme
  • The interior was maximized for socializing, sailing events

 

Construction

  • This building was constructed in 1990
  • Covers 30,615 sq. ft.
  • NSC is built on reclaimed land, which was partly marsh
  • Ben Franklin was the mayor during the construction, and our oldest committee boat (the blue one) is named after him.

 

Post Author: Callum Smith